集成式 BIM 工具,包括 Revit、AutoCAD 和 Civil 3D
基于 Inventor 和 AutoCAD 的专业 CAD/CAM 工具
娱乐内容创作工具,包括 3ds Max 和 Maya
通过集成设计分析、文档、协调、详图设计和预制,交付性能更高、更具可持续性的 MEP 系统。
根据结构环境定义空间和分区要求、计算负荷以及对管道、导管和套管进行建模。
使用详细的 MEP 建模,通过一致的单一材料、人工和制造源支持预制过程中的估算。
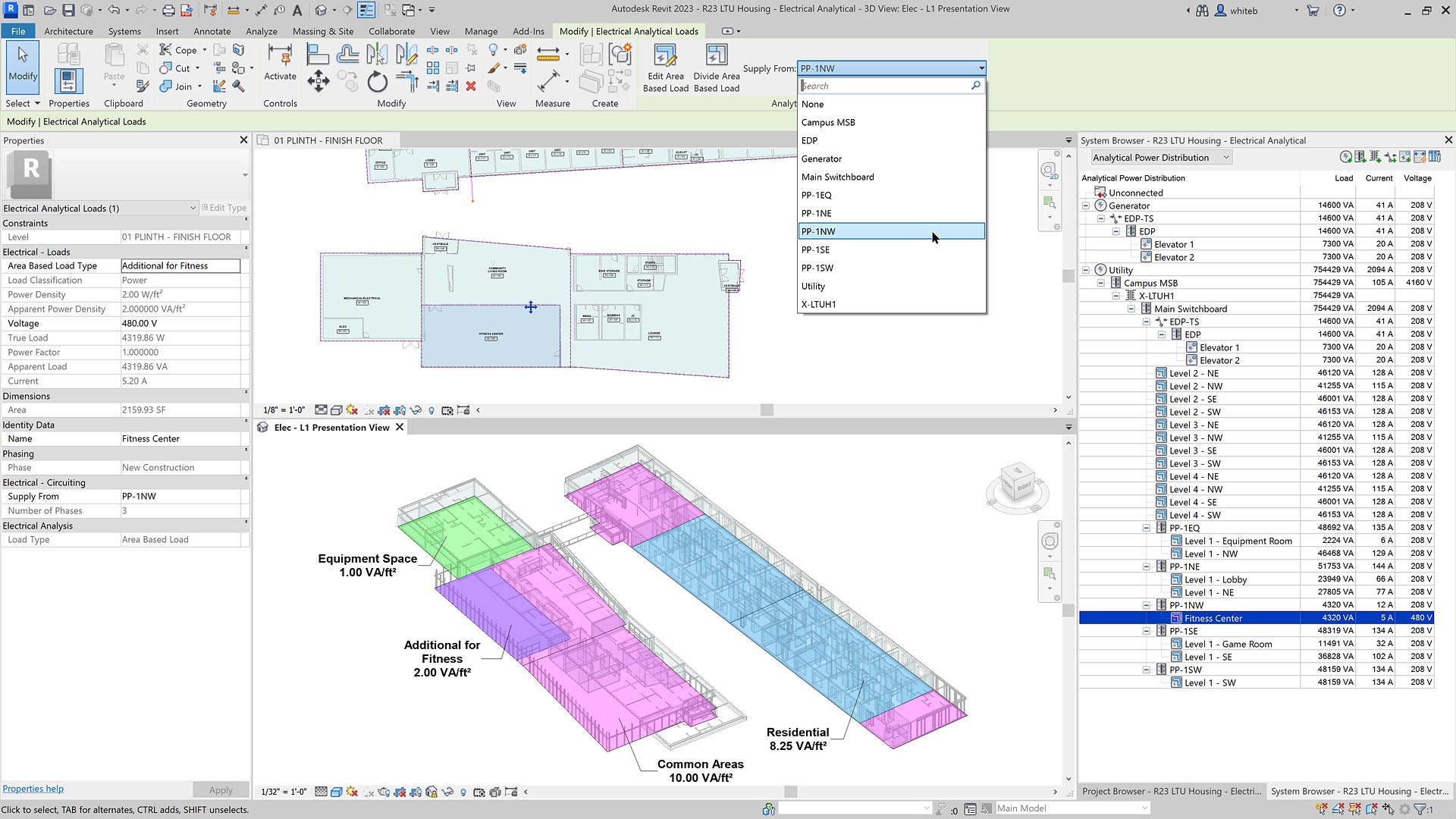
使用建筑 Revit 模型、DWG 或 PDF 定义空间和分区、占用、照明和设备负荷进行设备选择和调整尺寸。
使用空间和分区、明细表、自定义参数和计算、内置的模拟和分析,以及导出到第三方工具,以选择设备和调整其尺寸。
通过以开放且可扩展的形式连接至 Revit,可使用 EnergyPlus 获得高级建筑能量以及系统模拟和分析。
能量分析界面 — 图片来源:KlingStubbins
以二维和三维的形式定义主要机械和电气设备的布局,以用于配电布线和尺寸调整。
以二维和三维的形式定义机械和电气设备的布线,计算压力和电压损失,调整导管、管道和电缆的尺寸。
以二维和三维的形式定义工厂和设备房间的布局。
工厂设备的三维可视化
—Bimal Patwari,Pinnacle Infotech 创始人兼 CEO